| 设计压力MPa | 0.4 |
|---|---|
| 设计温度 | -20—165 |
| 技术标准 | HG/T3113-1998 |
| 材质 | 不锈钢 |
| 规格 | I型与II型 |
| 耗气量 | 0.4m3/min |
| 接管公称直径 | 定制 |
| 结构形式 | 立式 |
| 类型 | 换热器 |
| 用途 | 钢厂,化工,换热器,煤矿,石油 |
| 重量 | 200(kg) |
| 传热方式 | 混合式换热器 |
| 流道截面积 | 50m2 |
| 分类 | 循环冷却器,石墨换热器,列管式换热器,混合式换热器,管式换热器,常压蒸发器 |
| 包装类型 | 套装 |
| 品牌 | 通球化工设备 |
| 加工定制 | 是 |
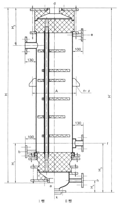
GGH型新型列管式石墨换热器是浮头列管式石墨热交换型形成行业标准之前**已形成系列的产品。它与GHA型结构类似,技术特性相同,与HGA型不同之处有二:一是型号标记仅以换热面积为序;二是换热管有效长度不通。为照顾LGH型产品已存在的广大用户更换设备之需,本厂将继续生产该型产品。(气液分离器为钢衬胶结构者为II型。订货时需注明)
技术特性
纵向 横向
设计压力MPa 0.3CDN<=1100 0.3CDN <=900
0.2CDN >1100 0.2CDN >900
设计温度°C 130(冷却) 120(加热)
技术标准:HG/T3188-2000





